Property Description
Key Features
-
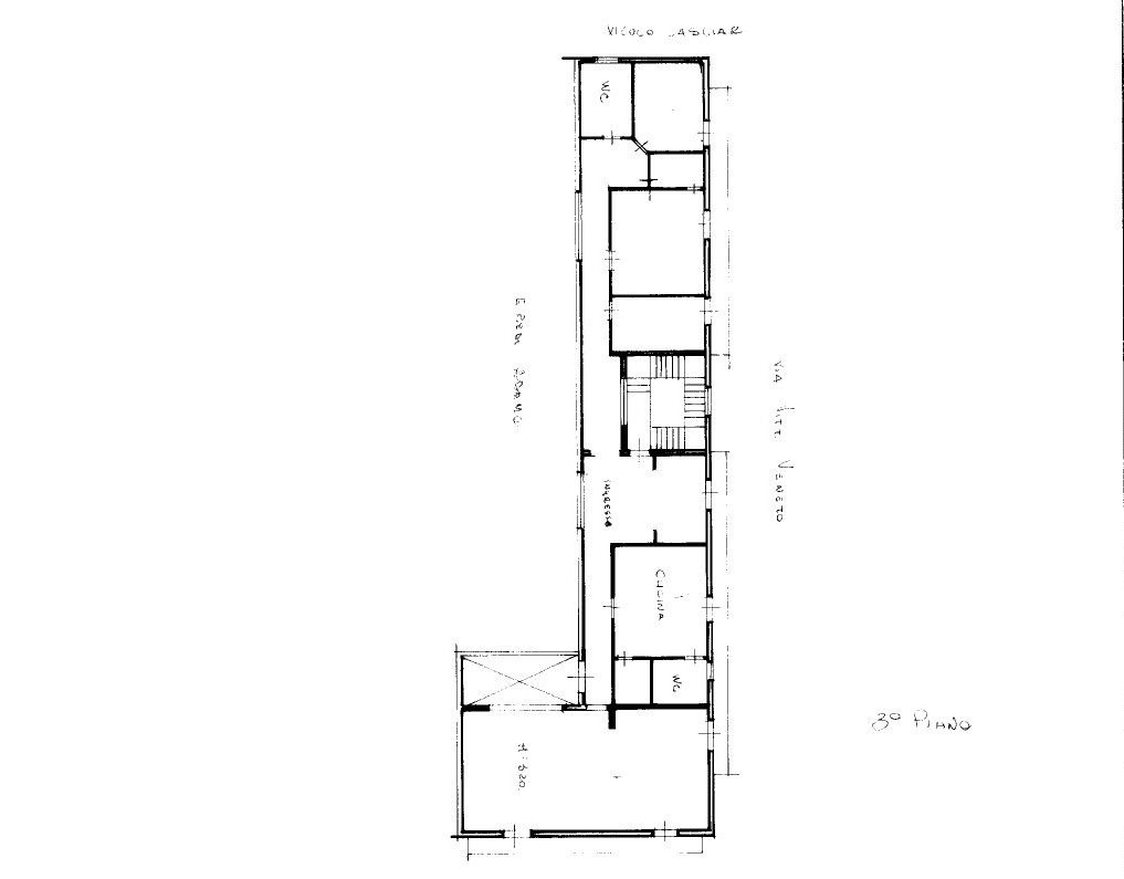
Over 2,500 sqft (233 sqm) of living space on a single level.
-
Rare four-way exposure (North, South, East, West) providing unparalleled natural light and cross-ventilation.
-
Located on the 3rd floor with elevator access —a significant luxury in Alcamo’s historic core.
-
Large living room featuring a traditional wood-burning fireplace and direct terrace access.
-
3 Large bedrooms (including a master with a walk-in closet), 2 bathrooms, plus a dedicated laundry room and eat-in kitchen.
-
Private balcony/terrace plus access to a communal rooftop with panoramic views of the Gulf of Castellammare and Mount Bonifato.
Situated in the heart of Alcamo on the prestigious Via Vittorio Veneto, this sprawling third-floor residence offers a rare combination of size, light, and convenience. While many historic center properties suffer from limited sunlight, this apartment’s quadruple exposure ensures every room is bathed in natural light, offering views of the city’s architectural skyline from every window.
The layout is designed for both entertaining and family life. The grand entryway leads to an oversized living room anchored by a classic fireplace, perfect for cozy Sicilian winters. The night area is smartly separated, featuring a master suite with a walk-in closet, while the service wing includes a spacious eat-in kitchen and a convenient secondary laundry area.
While currently habitable, the property offers a “blank canvas” for a high-end custom renovation. The sheer square footage and elevator service make it an ideal candidate for a luxury private residence or a sophisticated boutique guesthouse.
Location & Lifestyle
-
The Neighborhood: Steps away from the Corso VI Aprile, Alcamo’s main social and shopping artery. Enjoy immediate access to artisan bakeries, cafes, and the city’s historic churches.
-
Beach Access: A 10-minute drive to the golden sands of Alcamo Marina and 20 minutes to the world-famous village of Castellammare del Golfo.
-
Wine Country: Located in the heart of the Bianco d’Alcamo wine region, surrounded by elite vineyards and tasting rooms.
-
Connectivity: Strategically positioned between Palermo and Trapani airports (both approx. 35-40 minutes away).

















































